REFERENZEN

Bürgermeisterstraße 18

Bürgermeisterstraße 18

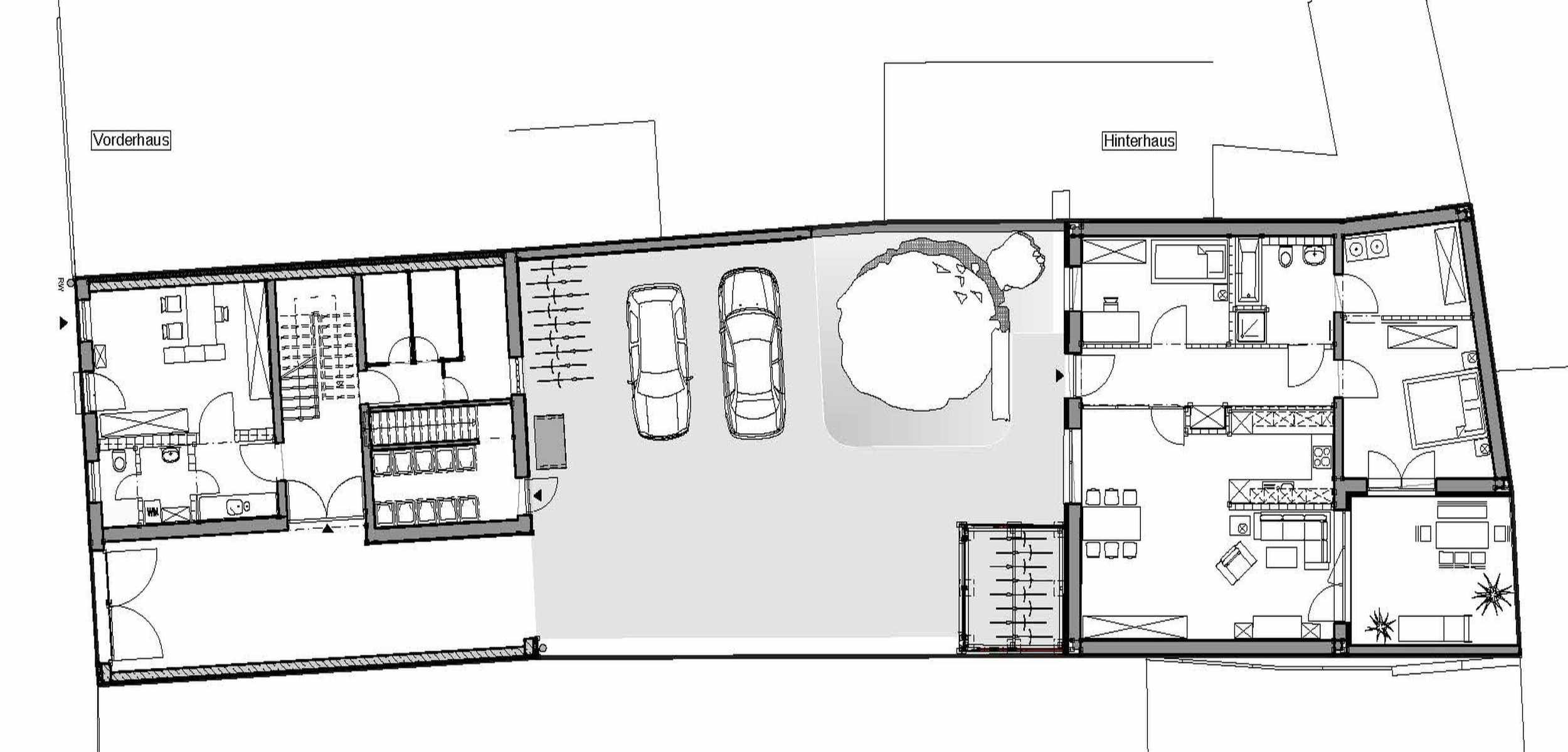
In der Wittenberger Innenstadt schuf der Bauherr neuen Wohnraum durch die behutsame Neubebauung eines stark verfallenen Bestandsgebäudes. Dieses wurde bis zur Oberkante Gelände zurückgebaut. Auf dem erhaltenen Gewölbekeller des Vorderhauses entstand ein dreigeschossiges Wohngebäude mit drei Wohneinheiten und einer Gewerbeeinheit. Auf dem Keller des Hinterhauses wurde ein Einfamilienhaus errichtet. Ergänzt wird das Ensemble durch einen begrünten Carport sowie eine Fahrradeinhausung.

Das Vorderhaus wurde in Massivbauweise mit ausgebautem Dachgeschoss, symmetrischer Fassade und drei Gauben ausgeführt und fügt sich in die bestehende Reihenbebauung ein. Im Erdgeschoss befinden sich Büro- und Lagerräume, in den Obergeschossen drei Wohnungen mit Balkonen. Das barrierefreie Hinterhaus ist eingeschossig angelegt und verfügt über Wohnbereich mit Terrasse, Schlafzimmer und Bad. Die Neubauten erhielten Putz- bzw. Holzfassaden sowie Ziegel- und begrünte Flachdächer.

Zurück